Südlich des Tiergartens entsteht eine Wohnlage der Luxusklasse.
Mein erstes Projekt bei PHR-Architekten war die Leitdetailplanung für die Villa 1.
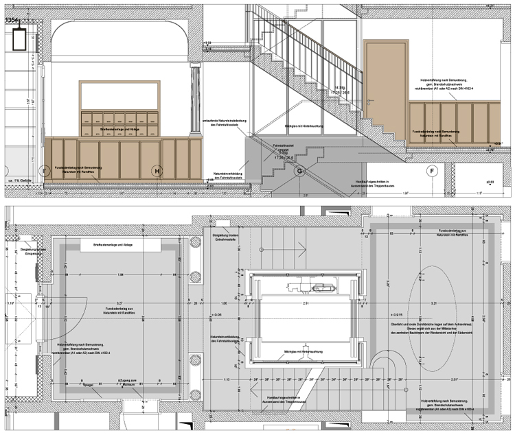
Die Planung des Eingangsbereichs mit Säulenportal, Treppenanlage und Fahrstuhl war eine besondere Herausforderung.
Schnitt und Grundriss des Eingangsbereichs
